Digitarq.mx

Cosmeticolors

Despacho de arquitectura con amplia experiencia en soluciones habitacionales urbanas dentro de la Ciudad de México y su Zona Metropolitana.

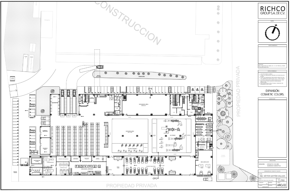
El proyecto surge por la expansión de Comseticolors, fabricante de cosméticos en Toluca, que requiere una nueva nave industrial de 11,000 m² con oficinas, almacenes, producción, talleres y laboratorios. La obra integra diversas especialidades de ingeniería, enfocándose en optimizar espacios, funcionalidad y aspectos técnicos para garantizar un funcionamiento eficiente y apoyar su crecimiento a largo plazo.

Toluca, Estado de México 16,517 m²

Alcances del Proyecto

El alcance de este proyecto incluyó el desarrollo del proyecto arquitectónico, la topografía, la mecánica de suelos, los planos de herrería, carpintería, cancelería, jardinería, acabados y el modelado BIM. La ejecución exitosa de esta nave industrial, adaptada a las necesidades específicas de la empresa, es un ejemplo claro de nuestra capacidad para integrar soluciones de diseño y tecnología en proyectos de gran envergadura.

Copia de CC_13 (1)
Copia de CC_12
Copia de CC__07
Copia de CC__03
Programas a utilizar

La coordinación entre las diferentes ingenierías fue un desafío clave. Lo ideal sería haber trabajado todo el proyecto bajo la metodología BIM, sin embargo, algunos de los responsables de las ingenierías solo utilizaban AutoCAD, lo que obligó a que la coordinación fuera más minuciosa y detallada. Actualmente, se están modelando todas las ingenierías en Revit BIM para apreciar correctamente cada parte del proyecto y lograr una mejor integración entre los diferentes sistemas de la nave industrial.

Enseñanzas

Este proyecto nos permitió adquirir una gran cantidad de experiencia y comprensión del funcionamiento de las diferentes especialidades involucradas, como ingeniería civil, estructural, eléctrica, sanitaria, entre otras. La colaboración estrecha con expertos de cada área nos permitió optimizar los resultados, identificar áreas de mejora y aplicar soluciones innovadoras.

Historia

Algo que marcó este proyecto fue una conversación con el director de la empresa, quien expresó su visión: “No quiero que esta planta proyecte que contamos con muchos recursos y podemos despilfarrarlos, quiero que proyecte que tenemos la mejor tecnología e invertimos en lo que es realmente relevante. Los materiales de lujo no representan a la empresa.” Este comentario reflejó el enfoque pragmático y realista del cliente, lo que influyó en las decisiones de diseño.

 

Proceso de contratación
01
Contáctanos

Cotiza con nosotros por medio de Whatsapp o a la bandeja de aquí abajo.

02
Necesidades

Describe lo que necesitas, ubicación del predio, metros cuadrados aproximados y el uso que le darás a los planos.

03

Cotización

Te enviamos tu cotización en menos de 30 minutos por correo y whatsapp.

04
Programación

Programamos la cita con un mínimo de 16 hrs antes y en el horario que te sea conveniente.

Tiempo

Al recibir la solicitud de colaboración en este proyecto, el tiempo ya estaba limitado debido a la urgencia de la expansión de la empresa. A pesar de las dificultades que implicó la complejidad del proyecto, logramos completar las tareas asignadas en un tiempo récord de tres meses, considerando que se presentaron correcciones y ajustes importantes en el camino. La capacidad de adaptación y la eficiencia fueron claves para cumplir con los plazos establecidos.

Foto de perfil
¿Necesitas ayuda con tu proyecto? 👋